
UPSILON BISTRO
2023Taipei City, Taiwan
UPSILON BISTRO
人是種特別的動物,對未知好奇,對不熟悉恐懼,又止不住渴望解謎,習慣符合常規,卻又想方設法突破限制。或許每個人的體內,都有一點馬戲基因,這樣的基因,將引領我們到什麼地方?
Humans are unique creatures. They are curious about the unknown. They are afraid of the unknown while eager to solve puzzles. They are used to following the rules while trying to break them. Perhaps, there are a few circus genes in every human body. Where will such a gene lead us?



人潮熙攘的長安東路上,夜晚在這裡停留的特別長,在各種大聲嚷嚷間,有一處安靜得特別顯眼,傳說中僅開放給「正常又不甘於正常」人的馬戲團-「Y-UPSILON」。門口駐守的團員,正用低調但又金色奪目的姿態,取走你的好奇心,換做入場證明。
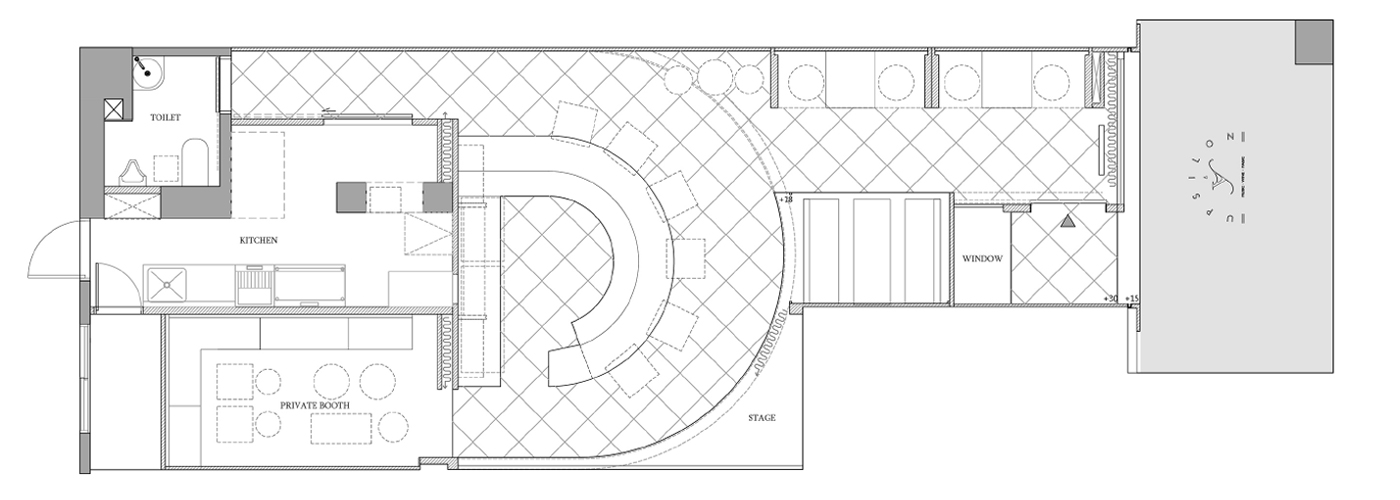
暗門開啟,印入眼簾的不是既定印象中,絢麗誇張的馬戲場景,而是沈穩卻不安分的粉色拱門,包圍在一片深綠與金色的點綴中。空間裡重複交疊的拱形語彙,將雙人座位區包覆其中,創造出隱密的包廂感受。若你是四人造訪,歡迎搭乘金鹿馬車,神遊在彼此的心領神會。
暗門開啟,印入眼簾的不是既定印象中,絢麗誇張的馬戲場景,而是沈穩卻不安分的粉色拱門,包圍在一片深綠與金色的點綴中。空間裡重複交疊的拱形語彙,將雙人座位區包覆其中,創造出隱密的包廂感受。若你是四人造訪,歡迎搭乘金鹿馬車,神遊在彼此的心領神會。
The night stays extremely long on the bustling Chang'an East Road. Among all the loud noises, there is a place that is too quiet not to catch people’s eyes. It is said the circus - “Y-UPSILON” is only open to “ordinary but unwilling to be ordinary” people. The members stationed by the door are taking away your curiosity in a low-profile but dazzling gesture and exchanging it for admission tickets.
The secret door opened, and what catches the eye is not the gorgeous and exaggerated circus scene as one would imagine, but the calm but restless pink arch, surrounded by a dark green and gold embellishment. The repeated and overlapping arch in the space covers the double seat area, creating a private room feeling. If you are a group of four, you are welcome to take the Golden Deer Carriage and wander in each other’s understanding.
The secret door opened, and what catches the eye is not the gorgeous and exaggerated circus scene as one would imagine, but the calm but restless pink arch, surrounded by a dark green and gold embellishment. The repeated and overlapping arch in the space covers the double seat area, creating a private room feeling. If you are a group of four, you are welcome to take the Golden Deer Carriage and wander in each other’s understanding.




順著動線的帶領,馬戲棚般的環形吧檯座落在場域正中心,棚頂的水波紋金屬美耐板攜手鎢絲燈泡,襯托著調酒師手裡一場又一場的奇幻大秀。如果你幸運坐在搖滾區,請盡情釋放自己,唯獨當心目眩神迷。
Following the lead of the traffic flow, a circus-tent-like round bar is located in the center of the venue. The water-corrugated metal melamine board with the tungsten light bulbs on the roof brings out the fantastic show one after another in the hands of the bartender. If you're lucky enough to be in the GA floor section, please have a ball, but just be careful not to be dazzled.
Following the lead of the traffic flow, a circus-tent-like round bar is located in the center of the venue. The water-corrugated metal melamine board with the tungsten light bulbs on the roof brings out the fantastic show one after another in the hands of the bartender. If you're lucky enough to be in the GA floor section, please have a ball, but just be careful not to be dazzled.




吧檯正對面的神秘舞台,運用仿古鏡與茶鏡切割排列而成,在燈飾的照耀反射中,創造虛實交錯的視覺感,也帶來與你不期而遇的特別表演。究竟讓人如癡如醉的演出是真實?還是幻想?不管哪種,都很值得觀賞。
不大的空間裡,每個小地方都耍著自己的馬戲,企圖吸引來往人們的注意。牆面利用多種特殊塗料,創造出不同的質感紋理,帷幕與座椅搭配異材質的絨布與皮革,與環形燈條相互映照下,使人沈浸在迷人的想像,釋放出身體裡的另一個自己。
在表演的最後,不刺眼的光影圍繞著你,你將成為馬戲團中,最耀眼而特別的重頭戲。
不大的空間裡,每個小地方都耍著自己的馬戲,企圖吸引來往人們的注意。牆面利用多種特殊塗料,創造出不同的質感紋理,帷幕與座椅搭配異材質的絨布與皮革,與環形燈條相互映照下,使人沈浸在迷人的想像,釋放出身體裡的另一個自己。
在表演的最後,不刺眼的光影圍繞著你,你將成為馬戲團中,最耀眼而特別的重頭戲。
The mysterious stage on the opposite side of the bar is made of cut and arranged antique and tawny mirrors. The reflection of the lighting creates a virtual and real interlaced visual sense and also brings you an unexpectedly special performance. Is the mesmerizing show real? Or a fantasy? Either way, it is worth watching.
Circuses are playing everywhere in this small space, trying to attract the attention of people passing by. A variety of special coatings are used on the walls to create different textures. The curtains and seats are matched with flannel and leather of different materials, and the ring light bar reflects each other, making people immersed in charming imagination and releasing another self out of the body. At the end of the performance, surrounded by the non-dazzling light, you’ll become the most shining highlight of the circus.
Circuses are playing everywhere in this small space, trying to attract the attention of people passing by. A variety of special coatings are used on the walls to create different textures. The curtains and seats are matched with flannel and leather of different materials, and the ring light bar reflects each other, making people immersed in charming imagination and releasing another self out of the body. At the end of the performance, surrounded by the non-dazzling light, you’ll become the most shining highlight of the circus.










